GRANULATORS EV62 Series
MODELS
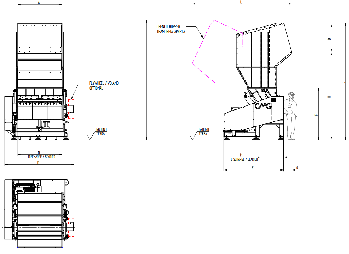
EV 62-160





TECHNICAL DATA
- Designed for large-scale recycling of post-consumer plastics, wet or dry.
- Higher production capacity than conventional technologies.
- Robust structure designed to withstand the most intensive applications.
- Clean and dimensionally homogeneous regrind, without dust or microparticles.
- Maximum productivity with minimal environmental impact.
- Up to 50% less energy consumption compared to traditional granulators.
- Intelligent drive systems.
- Maximum energy efficiency and lowest operating cost (TCO).
- Easy maintenance to minimize downtime.
- Modular structure for simplified transport, positioning, and assembly.
- Total lifting of the hopper for access to the cutting chamber from all four sides.
- Rotating blades with double sharpening and 55° inclination.
- Reversible sector screen for simplified cleaning and maintenance.
- Open rotor design with 70% useful volume in cutting chamber.
- No drag effect to eliminate the production of microparticles and dust.
- Guaranteed dimensional homogeneity of the ground material.
- Robust structure and no vibrations, ISO 10816-3 directive (vibrations less than 1.5 mm/s).
- Cutting chamber components made of Hardox wear-resistant steel.
![]() mm |
![]() n° |
![]() n° |
![]() mm |
![]() RPM |
![]() Ø mm |
![]() Kg/H |
![]() KW |
|
| EV62-160 | 1650x1040 | 3(6) | 2 | 610 | 460 | 10 | 1500-3000 | 75 (90-110-132) |
| A | B | C | D | E | F | G | H | I | L | N | P | |
| EV62-160 | 1650 | 1040 | 4350 | 2560 | 2220 | 1930 | 310 | 3270 | 4340 | 3810 | 690 | 1650 |















